Calvary Christian School is designed to serve elementary and junior high students, organized into two distinct wings that converge at a central mass. This central core houses the school’s communal facilities, including the library and multi-purpose hall, encouraging interaction and shared experiences among different age groups. A large skylight above the central space brings in ample natural light, reducing the need for artificial lighting during the day and creating a warm, uplifting atmosphere at the heart of the campus.
Given the projected number of students, the campus includes two separate canteens—one for elementary and one for junior high—to accommodate different schedules and age-specific needs. The circulation is planned to ensure efficient movement while maintaining a sense of independence for each school level.
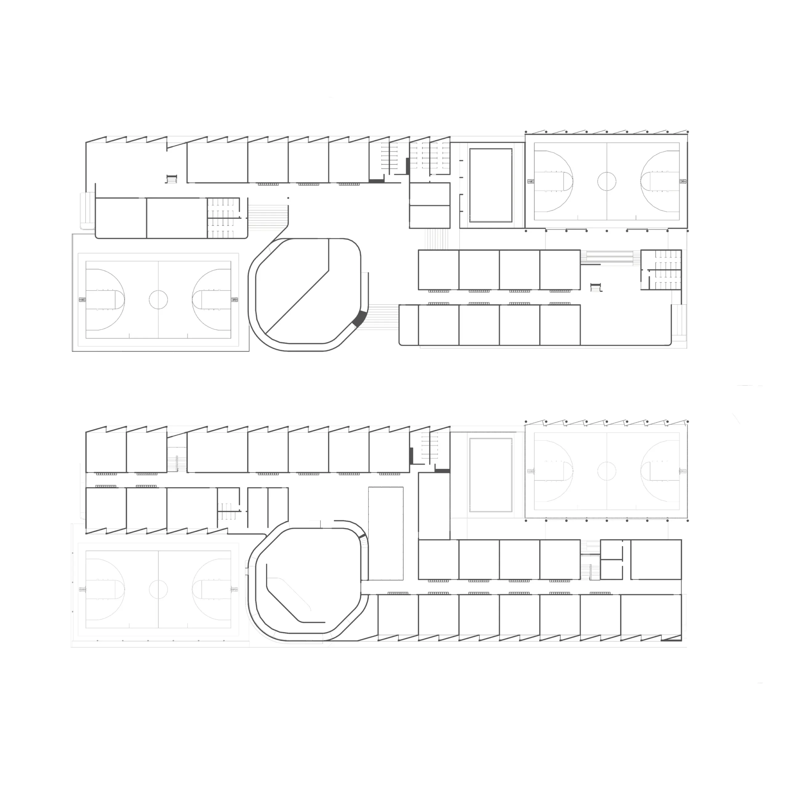
The school also provides two sports fields: one outdoor and one indoor. The outdoor field doubles as a ceremonial plaza for flag-raising and school gatherings, while the indoor court is designed to support various sports activities and competitions, complete with seating for spectators. A swimming pool is also included, with appropriate planning for privacy and safety.
The architectural language of the two wings follows a similar rhythm, with subtle variations in detail and articulation. This creates a balanced composition—visually unified, yet allowing each wing to express its own identity within the whole.







